Смотреть видео: Проект дома цена за квадратный метр

Проект одноэтажного дома Rg5507 с цоколем, газобетон (137 м2, 15м x 12м) купить
Проект АС-74 дом 173 кв.м 3 спальни 2 этажа 9 на 14 м - цена строительства
Проекты одноэтажных каркасных домов / каркасный дом своими руками
Проект компактного дома до 100 кв.м. План дома, Дом, Планы небольших квартир
Проект АС-3174 дом 75 кв.м 2 спальни 1 этаж 8 на 10 м - цена постройки
1) New Message! in 2023 Building plans house, House construction plan, Bungalow
Проект АС-Р3 дом 81 кв.м 2 спальни 1 этаж 9 на 9 м - с ценой строительства
Цена постройки дома 80 кв.м 3 спальни 1 этаж 8 на 10 м из СИП и ЦСП панелей для
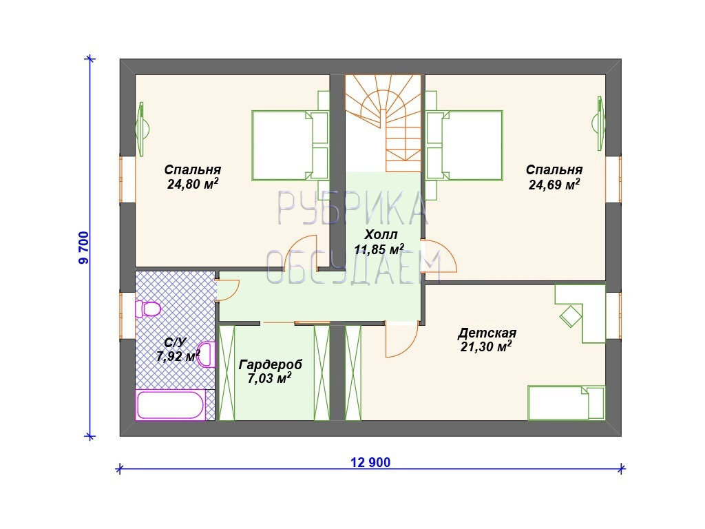
Обсуждаем проекты домов № 10: проект двухэтажного дома 12,5х9,5 м My Cottage Дзе
Дом КП 215,5 кв.м
Дом из кирпича 917 в Тюмени
Симпатичный одноэтажный дачный домик с мансардным этажом House plan gallery, Aff
Проект красивого дома до 100 кв.м. Архитектурное бюро "Беларх" - Авторские проек
Готовый проект дома 83 кв.м // Артикул ОЧ-170
Строительство домов под ключ проекты - Калуга
Проект дома Хайтек 252-1 - заказать в компании Промстройлес
Проект дома 124 м.кв 1 этаж 3 спальни 10 на 12 с террасой - цена строительства Д
Дом из бруса 9х9.5 "Сезам" Проект и цена строительства в Москве
Проект современного двухэтажного дома с гаражом и камином S3-219-5 (Zz2 k). Фото
Проекты одноэтажных домов из пеноблоков 100-150 кв.м: фото и схемы
Zet-05/1202 - дом из газосиликатных блоков от ЗэтПроект в Москве - Лесстрой
The architectural and design bureau offers projects of frame buildings. Prepared
Исследование теплоизоляционных свойств строительных материалов - Документ 1 - Уч
Проект каркасного дома РП-41 (152.9кв.м.). Каркасные дома. Проекты домов. Строит
Проекты ООО "УфаГазобетон"
Дом из керамзитобетона K-196-2 площадью 96.4 кв. м в Тюмени
Здесь стоит построить дом с захватывающим видом на море, горы и долину реки Лоо
kd_050.jpg Проекты домов 24-stroi.ru
Милан-К, проект каркасного дома 7,1x9,3, 67.00 кв. м, цена - 2310000 руб. в Сама
Купить дачу с бассейном на улице Николая Гоголя (село Чикча) - предложения о про
Проект дома Plans-65-08 (184 кв.м, газобетон) - купить по низкой цене на Яндекс
Проект загородного дома - Фрилансер Евгений Золотарёв dizayn3d - Портфолио - Раб
Проект одноэтажного дома 90 м.кв - цена: от 4500 руб.
Проект дома s3-148-5 (Z62 A minus). Строительство по проекту Z62 A minus в Москв
Калькулятор блоков и кирпича - расчет количества блоков на дом (газосиликатных,
77м2, 8х8м) Готовый проект двухэтажного дома из газобетона с камином - AS-2053 -
Проект одноэтажного загородного дома AS-2071 из газоблоков с крыльцом
Проект дома 135 м.кв двухэтажный 8 на 9 - цена строительства из газобетона
Проект дома 50 м.кв - цена строительства под ключ из полистиробетона
Дом одноэтажный с мансардой 260 кв.м., проект z275