Смотреть видео: Обустроить сарай под столярку расположение чертеж план

Приспособления для гаража своими руками: идеи и советы по созданию Гараж, Планы
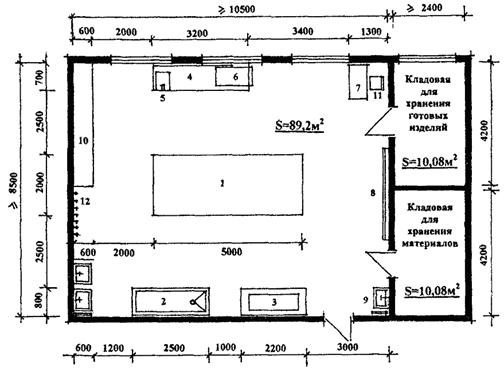
Оптимальные размеры мастерской: найдено 88 изображений
Как сделать расширенный сарай Садок-городок Дзен
Idea Shop 4 (2000) - Don't let the date fool you. The great ideas in this shop a
Чертежи мастерской по дереву: найдено 90 изображений
Проект столярной мастерской чертежи
Хозблок ХБ-И11
Как обустроить компактную столярную мастерскую: для души и дела FORUMHOUSE Дзен
Рекомендации Рекомендации по проектированию специальных учебно-воспитательных уч
Чертежи мастерской по дереву: найдено 90 изображений
Workshop Ideas... Woodworking shop layout, Workshop layout, Woodworking shop pla
Мастерская мечты 2.0 Фотообзор идеи и варианты реализации мечты Мастера: Своя Ма
Обустраиваем хозпостройки и подсобные помещения в доме и квартире? +Фото, Виды и
Проект хозблока - план - Фрилансер Елена Гречковская lg-freespace - Портфолио -
12 x 16 wood shop plans Woodworking workshop, Woodworking workshop layout, Woodw
Как обустроить столярную мастерскую на даче
Мастерская своими руками - требования к помещению
Читать книгу Хозяйственные постройки на садовом участке Виктора Страшнова : онла
The Devil’s Workshop Woodworking shop layout, Woodworking shop, Woodworking tool
Folding workbench for workshop Хороший рабочий стол (верстак) - основа мастерско
Winning Workshops: The Brighton Woodshop Modern shed, Modern garage, Diy shed
Pin by Drbendova on Shop Woodworking shop layout, Workshop layout, Woodworking s
Мастерская на даче - Какаду Декор.ру
Строительство хозблока: планирование и расчеты SKOGGY
From Garage To Home Workshop Workshop layout, Woodworking shop layout, Woodworki
Строим сарай-мастерскую своими руками
Читать онлайн книгу Справочник мастера столярно-плотничных работ - Галина Серико
Новая столешница для верстака в гараже - DRIVE2
Столярный верстак своими руками ч.1 - YouTube Верстак, Деревообрабатывающий верс
Мастерская 6 на 6 проект: найдено 86 изображений
Heartland 12-ft x 8-ft Stratford Saltbox Engineered Wood Storage Shed Lowes.com
Top 10 амбар для коз ideas and inspiration
Хозблок ХБ-И2 - купить в Санкт-Петербурге, узнать цены в компании Русский Мастер
Roll-Away Workshop Startwoodworking.com Woodworking shop layout, Garage workshop
Помещение для содержания животных фото - DelaDom.ru
Помещение под столярную мастерскую: найдено 90 изображений
Сараи для коз (36 фото): размеры загонов, козлятник своими руками по чертежам, у
план хозблока Садовые строения, Туалет, План
Best Place for Your Table Saw - Workshop Solutions Projects, Tips and Tricks Woo
Garage layout adjacencies Garage workshop layout, Woodworking shop layout, Works