Смотреть видео: Как правильно подключить теплообменник к баку

Теплообменник 115мм для выносного бака 8 л 0,8мм - купить в Новосибирске, цена 3
Теплообменник для банной печи: установка, подключение бака, схема
Баки для воды из нержавеющей стали и фитинги для подключения - Тройник Neptun IW
Бак навесной (для бани) 80 л горизонтальный - купить в интернет-магазине Spectep
Теплообменник для банной печи. Печь для бани с теплообменником для отопления Теп
Купить) Бак для Бани 80л по Отличной Цене
Бак с теплообменником в бане. Вопросы. - обсуждение на форуме e1.ru
Теплообменник для банной печи. Печь для бани с теплообменником для отопления She
Бак для т/об, 60л, AISI 439/0,8мм, горизонтальный (штуцер 3/4") - купить в интер
Купить СХЕМЫ ПОДКЛЮЧЕНИЯ БАКА И ТЕПЛООБМЕННИКА в Сыктывкаре по низкой цене Интер
Печи для бани с баком для воды - купить в магазине PlanetaTepla (Минск)
Теплообменник для банной печи
Выносной бак из нержавейки горизонтальный 100 литров с крышкой - купить в интерн
Теплообменник для банной печи: установка, подключение бака, схема
Подключение регистра и бака Бассейн
Теплообменник на дымоход своими руками
Печь для бани ТМФ Витрувия Inox БСЭ терракота
Теплообменник для банной печи: установка, подключение бака, схема
печь для бани и отопления дома одновременно: 5 тыс изображений найдено в Яндекс.
Теплообменник для банной печи своими руками: виды теплообменников, как установит
Бак навесной ТиС Стандарт 100 (горизонтальный) купить в Перми, цена на дымоходы
Печь для бани ТМФ Витрувия Inox БСЭ ТО Терракота
Строительство бани Страница 2 Амурский Берег - территория, свободная для творчес
2 в 1: теплообменник для нагрева воды в бане и инструмент для качественного прог
Какая печь для бани с баком для воды лучше
Бак выносного типа 60л, 3 выхода 3/4, толщина нержавейки 0.8 мм - купить в Красн
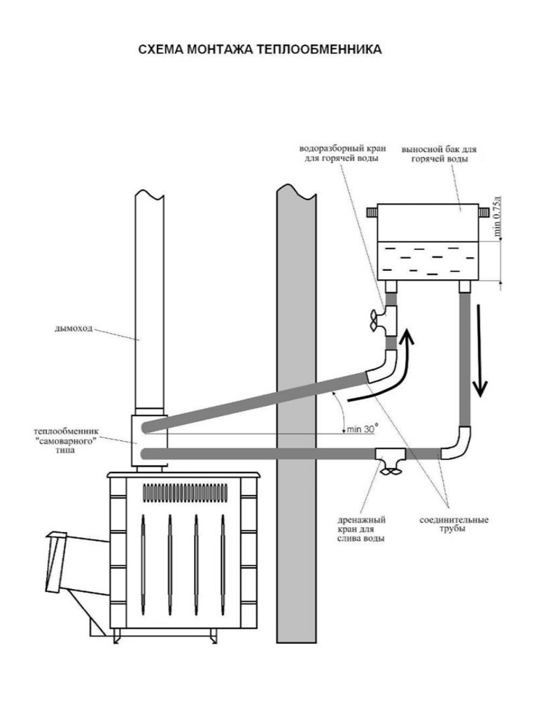
Схемы монтажа баков
Советы по выбору и монтажу дымоходов Вулкан из нержавейки
Дымоходы
печи с горячей водой в бане: 8 тыс изображений найдено в Яндекс.Картинках Сельск